Exposé.
\parHelle 2 Zi.-Wohnung, mit S\'fcd-Balkon und Echtholzparkett. \par \par
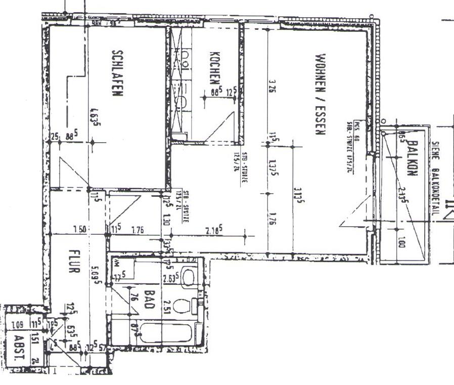
Objekt: Sch\'f6ne und helle 2 Zimmer Wohnung, mit interessantem Grundriss. Die Wohnr\'e4ume sind mit einem Echtholz-Parkett ausgelegt. Flur, Bad und K\'fcche verf\'fcgen \'fcber wei\'dfe Bodenfliesen. Das Wohnzimmer mit dem Zugang zum Balkon ist aufgrund der bodentiefen Fenster sch\'f6n hell. Die K\'fcche ist mit einer neuen modernen Einbauk\'fcche mit Ober- und Unterschr\'e4nken eingerichtet. Die Wohnung ist in einem gepflegten Zustand. Im Haus ist eine Tiefgarage vorhanden.\par \par
Lage: Das 3-geschossige Mehrfamilienhaus mit 12 Wohnungen liegt in Hamburg Schnelsen. Dieser Stadtteil verf\'fcgt \'fcber eine sehr gute Infrastuktur und geh\'f6rt zum Bezirk Eimsb\'fcttel. Schnelsen grenzt an die Hamburger Stadtteile Niendorf und Eidelstedt. \par \par
Ausstattung: Parkettboden, Einbauk\'fcche, Vollbad, Kabelanschluss, Kellerraum mit Stromanschluss. Grundriss
